< BACK TO DESIGNS
4-Unit Farmhouse



Features
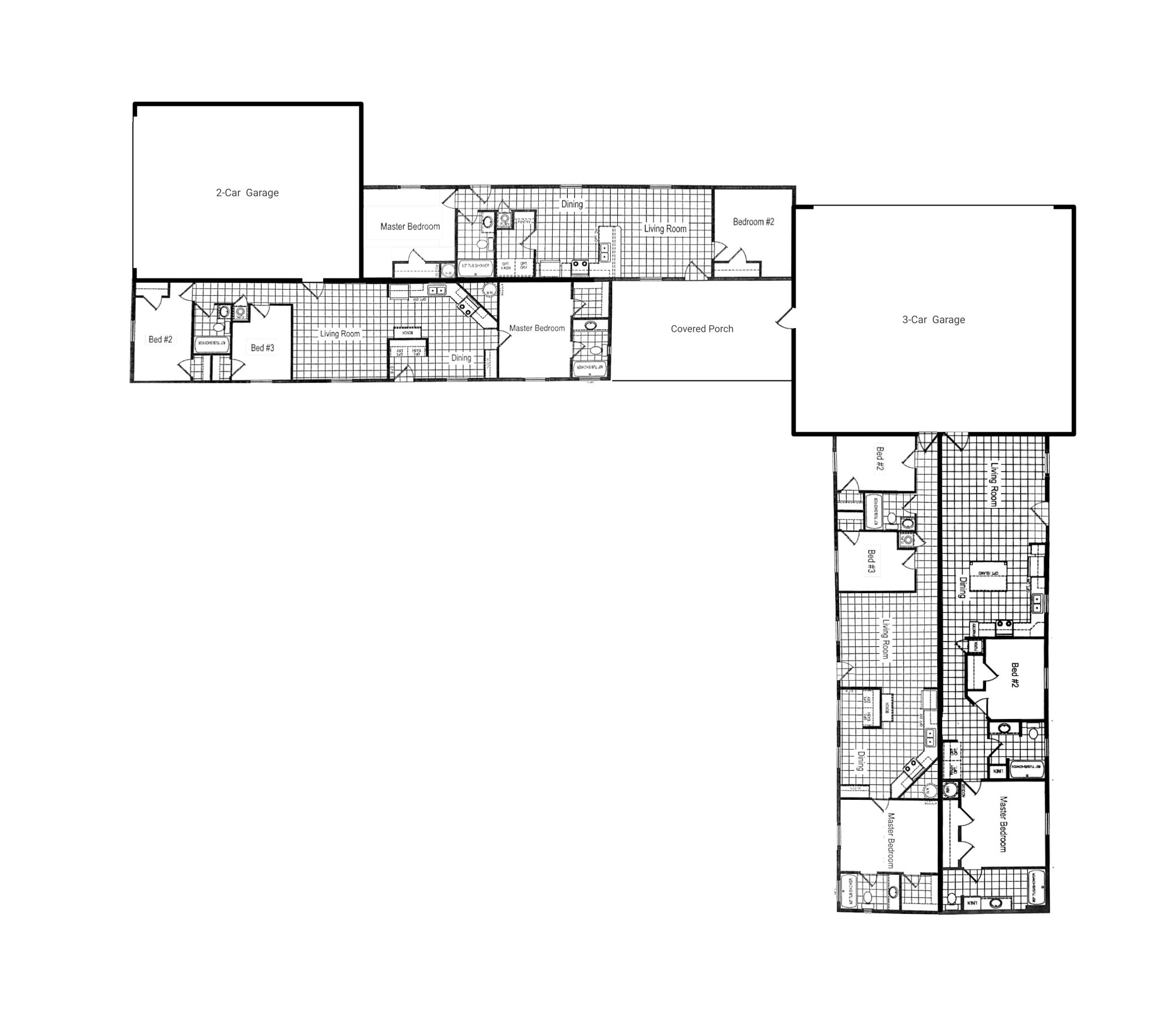
Unit #1
🛏️ 3 beds, 🛀🏻 2 baths, 📐1,031 sqft
Unit #2
🛏️ 2 beds, 🛀🏻 1 bath, 📐800 sqft
Unit #3
🛏️ 3 beds, 🛀🏻 2 baths, 📐1,031 sqft
Unit #4
🛏️ 2 beds, 🛀🏻 2 baths, 📐1,031 sqft
Parking Spots
🚘 5 indoor, 3 outdoor



Unit #1
🛏️ 3 beds, 🛀🏻 2 baths, 📐1,031 sqft
Unit #2
🛏️ 2 beds, 🛀🏻 1 bath, 📐800 sqft
Unit #3
🛏️ 3 beds, 🛀🏻 2 baths, 📐1,031 sqft
Unit #4
🛏️ 2 beds, 🛀🏻 2 baths, 📐1,031 sqft
Parking Spots
🚘 5 indoor, 3 outdoor
For project and other inquiries, please don’t hesitate to contact us.
Hopestead LLC
1018 N Main Street
Danby, VT 05739
(802) 444-1432