Modular Multifamily Homestead
An affordable housing model that combines factory efficiency with traditional Vermont design
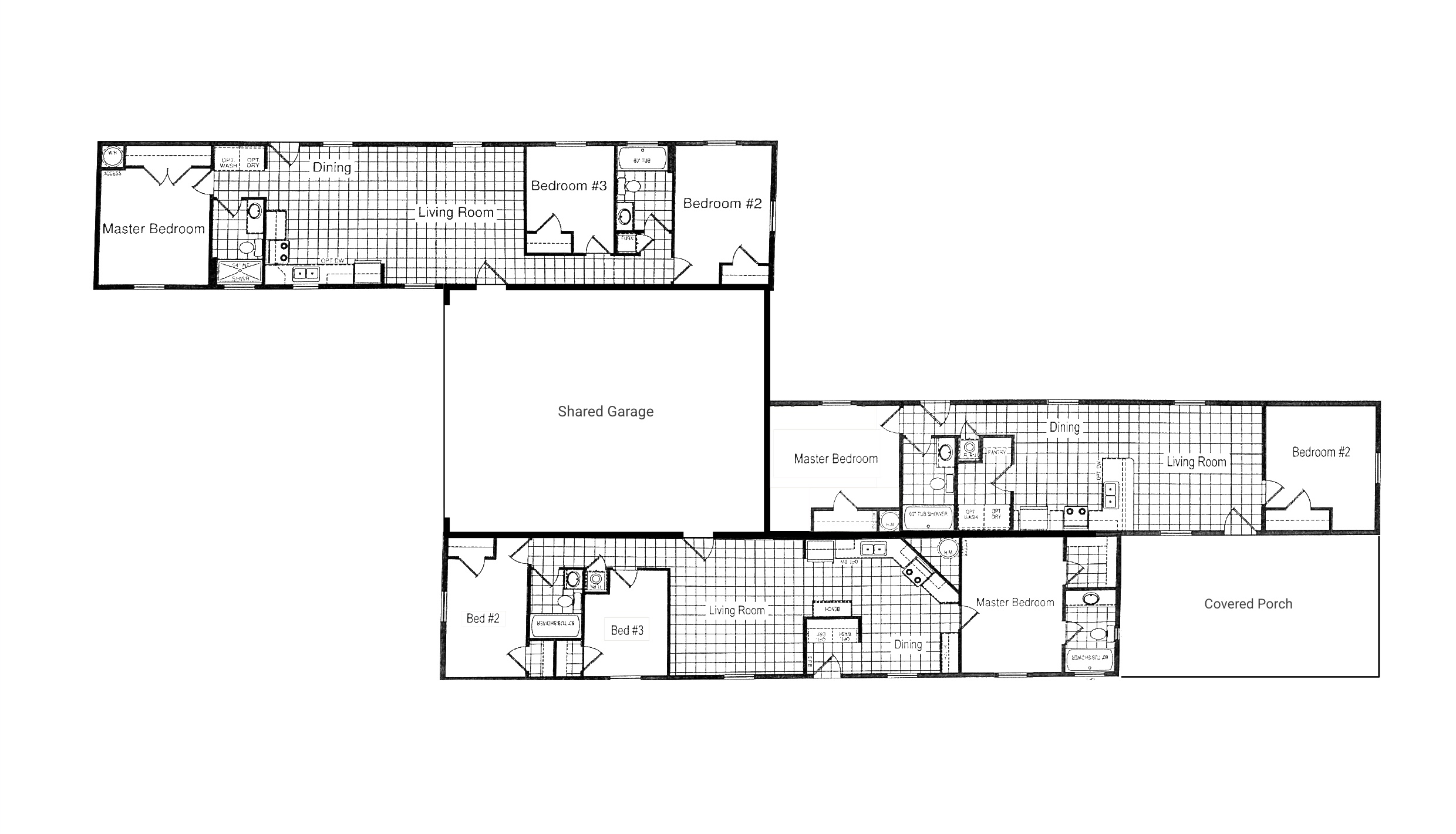
Images show different modular homestead designs. Each building contains multiple manufactured housing units within a single structure.
What is a Modular Multifamily Homestead?
A Modular Multifamily Homestead combines multiple prefabricated housing units into a single, architecturally cohesive building that resembles traditional Vermont homes. Unlike standalone manufactured homes, these units are integrated into larger structures that maximize density while maintaining aesthetic appeal. This modular approach allows for rapid construction using factory-built components that are assembled on-site, significantly reducing building time and labor costs while providing high-quality, energy-efficient housing that fits seamlessly into Vermont’s rural landscape.
How is it different from other types of affordable housing?
Traditional affordable housing developments are often hindered by large capital requirements, extensive permitting and regulatory hurdles. Modular Multifamily Homesteads solve these issues by maximizing dwelling unit density within existing zoning frameworks. These homesteads can be developed on smaller parcels, easily adapted to various lot configurations, and completed in months rather than years. The key innovation is their “hybrid” approach which combines the cost efficiency and speed of manufactured housing with the aesthetic appeal and permanence of traditional construction. Their attractive design also helps overcome community resistance by creating buildings that enhance rather than detract from neighborhood character.
How do Modular Homesteads help address Vermont’s housing crisis?
Vermont faces an acute housing shortage with the nation’s second-highest rate of homelessness, an aging housing stock, and a workforce-housing gap that hampers economic development. Modular Homesteads provide an immediately implementable solution by offering high-quality housing at lower costs while utilizing smaller sites that are more readily available throughout the state. Their scattered-site approach allows new units to be constructed in a wide range of rural and village settings, rather than concentrated in specific areas like traditional types of affordable housing, promoting economic diversity and stability for all communities across the region.
Project Highlights
☛
Innovative Housing Model: Combines the cost efficiency of manufactured housing with traditional Vermont architectural aesthetics to create multifamily dwellings that maximize density while enhancing community character.
☛
Rapid Construction, Lower Costs: Reduces construction time and costs by 30-40% through factory-built modular components, delivering high-quality, energy-efficient homes in months rather than years.
☛
Small-Site Development Solution: Enables development on smaller, scattered parcels across communities, bypassing the need for large land acquisitions while working within existing zoning frameworks.
☛
Economic Growth Catalyst: Breaks the workforce-housing deadlock by providing affordable options that help businesses attract workers and enable workers to secure housing near employment opportunities.
☛
Community Integration by Design: Addresses NIMBY concerns through attractive designs that blend with local architecture, promoting economically diverse neighborhoods across both rural and village settings.
☛
Scalable, Replicable Model: Creates a financially viable template that can be replicated and modified throughout Vermont to address regional housing needs while respecting each community’s unique character.



